Проект Б-1. Баня из бруса 4х6 м.

Сообщение об ошибке

  • Notice: Trying to get property 'subtype' of non-object в функции am_gal_panels_pane_content_alter() (строка 168 в файле sites/all/modules/am_gal/am_gal.module).
  • Notice: Trying to get property 'subtype' of non-object в функции am_gal_panels_pane_content_alter() (строка 168 в файле sites/all/modules/am_gal/am_gal.module).
  • Notice: Trying to get property 'subtype' of non-object в функции am_gal_panels_pane_content_alter() (строка 168 в файле sites/all/modules/am_gal/am_gal.module).
  • Notice: Trying to get property 'subtype' of non-object в функции am_gal_panels_pane_content_alter() (строка 168 в файле sites/all/modules/am_gal/am_gal.module).
  • Notice: Trying to get property 'subtype' of non-object в функции am_gal_panels_pane_content_alter() (строка 168 в файле sites/all/modules/am_gal/am_gal.module).
  • Notice: Trying to get property 'subtype' of non-object в функции am_gal_panels_pane_content_alter() (строка 168 в файле sites/all/modules/am_gal/am_gal.module).
  • Notice: Trying to get property 'subtype' of non-object в функции am_gal_panels_pane_content_alter() (строка 168 в файле sites/all/modules/am_gal/am_gal.module).
Размер:
4х6
Этажность:
Одноэтажная
Площадь:
24 м²
Под усадку.
Брус 140×140
794 100 руб.
Под усадку.
Брус 140×190
907 900 руб.
С отделкой.
Комфорт
1 308 700 руб.
С отделкой.
Премиум
1 435 000 руб.
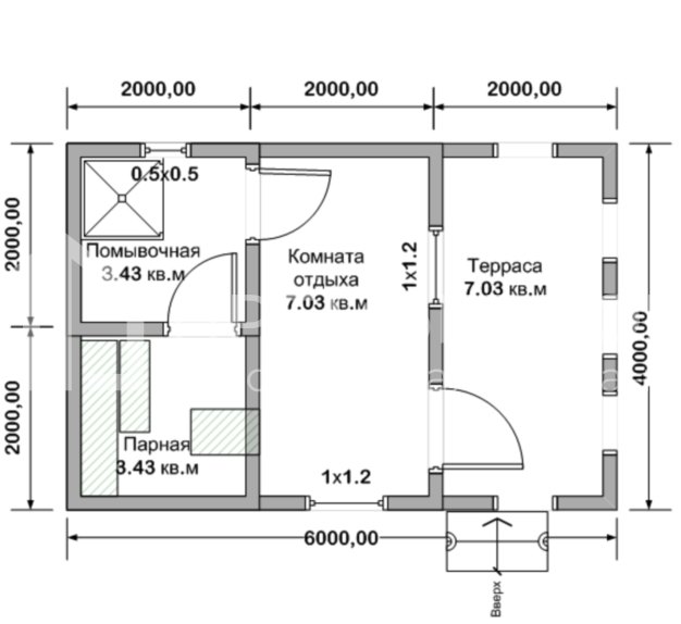
План бани из бруса 4х6 м. - Проект Б-1
Планировку можно изменить по вашему желанию. Вы можете добавить или убрать перегородку,
изменить назначение помещений или добавить окна там, где вам нужно больше света.
Наши специалисты помогут создать индивидуальный проект по вашим пожеланиям.

Описание комплектаций

  Под усадку. Брус 140×140 Под усадку. Брус 140×190 Комфорт Премиум
Сухой строганный антисептированный материал
 
 
 
 
Обвязка 150×150 мм 150×150 мм 150×150 мм 150×150 мм
Лаги 50×200 мм 50×200 мм 50×200 мм 50×200 мм
Внешние стены Проф брус 140×140 мм Проф брус 140×190 мм Проф брус 140×140 мм Проф брус 140×190 мм
Стропильная система 50×150 мм 50×150 мм 50×150 мм 50×200 мм
Кровля Металлочерепица Металлочерепица Металлочерепица Металлочерепица
Снегозадержатели нет нет нет
 
Вентиляция Вент труба Вент труба Вент труба + клапана Вент труба + КИВ
Окна нет нет ПВХ 62 мм ПВХ 70 мм
Дверь входная нет нет металл Металл с терморазрывом
Двери межкомнатные нет нет нет нет
Наружная отделка Имитация бруса Имитация бруса Имитация бруса Имитация бруса
Утепление нет нет Роквул 150 мм Роквул 200 мм
Внутренняя отделка нет нет Евровагонка Имитация бруса
Банная печь нет нет Ермак 12 Ермак 16ПС
Пол нет нет Квикдек Квикдек
Сборка
 
 
 
 
Доставка
 
 
 
 
Технический надзор
 
 
 
 

Полное описание комплектаций

  Под усадку
Брус 90
Под усадку
Брус 140
С отделкой
Комфорт
С отделкой
Премиум
ОСНОВАНИЕ
Обвязка двойная: из бруса сечением 100×150 мм 150×150 мм 150×150 мм 150×150 мм
Лаги пола: сухая, строганная доска врезается во второй ряд обвязки 50×150 мм 50×200 мм 50×200 мм 50×200 мм
Черновой пол: обрезная доска 20 мм 20 мм 20 мм 20 мм
СТЕНЫ И ПЕРЕГОРОДКИ
Внешние стены: профилированный брус камерной сушки 90×140 мм профилированный брус камерной сушки 140×140 мм профилированный брус камерной сушки 140×140 мм профилированный брус камерной сушки 140×140 мм
Перегородки 1-й этаж: профилированный брус камерной сушки 90×140 мм профилированный брус камерной сушки 90×140 мм профилированный брус камерной сушки 90×140 мм профилированный брус камерной сушки 90×140 мм
Сборка в теплый угол, на деревянные нагеля.
Потолочные балки: сухая, строганная доска 50×150 мм 50×150 мм 50×150 мм 50×150 мм
ОТДЕЛКА ФРОНТОНОВ
Влаго-ветроизоляция Наноизол «А» Наноизол «А» Наноизол «А» Наноизол «А»
Вентиляционные зазоры сухая, строганная рейка 20×50 мм сухая, строганная рейка 20×50 мм сухая, строганная рейка 20×50 мм сухая, строганная рейка 20×50 мм
Внешняя отделка Имитация бруса камерной сушки Имитация бруса камерной сушки Имитация бруса камерной сушки Имитация бруса камерной сушки
КРЫША
Стропила: сухая, строганная доска 50×100 мм 50×100 мм 50×100 мм 50×150 мм
Вентиляционные зазоры (контробрешетка) сухой, строганный брусок 40×40 мм сухой, строганный брусок 40×40 мм сухой, строганный брусок 40×40 мм сухой, строганный брусок 40×40 мм
Обрешетка доска толщиной 20 мм доска толщиной 20 мм доска толщиной 20 мм доска толщиной 20 мм
Кровля Металлочерепица, цвет на выбор Металлочерепица, цвет на выбор Металлочерепица, цвет на выбор Металлочерепица, цвет на выбор
Снегозадержатели - - - металлические
Вынос кровли, свесы не менее 45 см не менее 45 см не менее 45 см не менее 45 см
ВЕНТИЛЯЦИЯ
Приток воздуха - - приточный клапан на окна ПВХ стеновые клапана КИВ 125
Общедомовая вытяжка Вентиляционная труба Вилпе Вентиляционная труба Вилпе Вентиляционная труба Вилпе Вентиляционная труба Вилпе
Вытяжка ванных комнат - - - Вентиляционная труба Вилпе
ВНУТРЕННЯЯ ОТДЕЛКА
Пароизоляция - - Наноизол «В» Наноизол «В»
Пароизоляция парной - - алюминиевая фольга алюминиевая фольга
Вентиляционные зазоры - - сухая, строганная рейка 20×50 мм сухая, строганная рейка 20×50 мм
Чистовая отделка (камерной сушки) - - вагонка имитация бруса
Чистовая отделка парной (камерной сушки) - - осиновая вагонка «В» осиновая вагонка «А»
Пологи - - двухъярусные из осиновой доски двухъярусные из осиновой доски
Банная печь - - Ермак 12 Ермак 16 ПС
Водоотведение - - Душевой поддон Душевой поддон
Высота 1 этажа 2,35 м 2,35 м 2,35 м 2,5 м
УТЕПЛЕНИЕ
Пол: базальтовые плиты Rockwool - - 150 мм 150 мм
Потолок: базальтовые плиты Rockwool - - 150 мм 150 мм
ЧИСТОВОЙ ПОЛ
Пол: доска шпунтованная камерной сушки - - 36 мм 36 мм
ОКНА, ДВЕРИ
Дверь входная - - металлическая утепленная металлическая утепленная с терморазрывом
Двери межкомнатные: на петлях без фурнитуры - - - -
Окна - - ПВХ двухкамерные ПВХ профиль 70 двухкамерные
Обсадные бруски - - ройки ройки
ТЕРРАСА
Пол : строганная доска - - 36 мм 36 мм
Ограждение : балясины - - горизонтальные или резные вертикальные горизонтальные или резные вертикальные
         
Сборка и доставка в радиусе 500 км от производственной базы входит в стоимость.

Стандартная комплектация

Внешние стены Каркас: доска 40×100 мм.,шаг 586 мм. Наружная отделка имитация бруса 18×140 мм.
Наружная покраска — Тиккурила (цвет : на выбор Заказчика)
Все предметы экстерьера изготавливаются согласно проекта.
Основание Брус 100×150мм, обработан антисептиком.
Лаги Доска 40×150мм,шаг 585 мм. обработаны антисептиком.
Черновой пол Доска обрезная 20 мм, обработана антисептиком.
Пароизоляция и гидрозащита Ондутис смарт А и Б.
Чистовой пол Шпунтованная доска толщиной 27 мм.
Внутренняя отделка Имитация бруса 18×140 мм
Парная Потолок и стены: обшиваются осиновой вагонкой класса «А». по фольге.
Полог в парной Двухярусный осиновый.
Окна ПВХ. 2- х камерные
Дверь входная ПВХ. 2- х камерная
Дверь в парную и помывочную Банная со стеклом
Крыша Двускатная/односкатная, Высота конька 30см.
Кровля Цветной профлист.
Печь Ермак 12.
Электрика Освещение внутри и снаружи бани согласно проекта.В комнате отдыха 2 розетки, вводной автомат.
Сантехника Устанавливается душевой подднон с выводом сифона.
Водоснабжение Устанавливается душевая стойка с подсоединением к бойлеру.Раковина (при наличии в проекте)
Вентиляция В парном отделение " второе дыхание " в пологе.
В комнате отдыха устанавливается клапан индивидуальный вентиляционный.
Фундаментные блоки 8-10 шт.
Мебель Деревянная. В комнате отдыха,согласно проекта.
Транспортировочная упаковка Входит в стоимость.
Доставка и установка Доставка и установка включены в стоимость, в пределах ЛО и МО

Дополнительные услуги

Свайно-винтовой фундамент
Металлические сваи D -108 мм, L -2.5 м.с оголовком 200х200 мм.
60 000 руб.
Сваи ЖБИ
Железобетонные сваи D -150 мм, L -2.5 м.с оголовком 200х200 мм.
75 000 руб.
Отделка цоколя панелями
Фасадные панели Docke с отливной планкой.
50 000 руб.
Электропроводка
Скрытая электропроводка ВВГ в пвх гофре, со сборкой щитка.
90 000 руб.
Отопление
Электрокотел с разводкой труб и радиаторов по дому.
126 800 руб.
Водоразведение и канализация
Разведение воды и канализации по дому.
395 000 руб.
Сетка от грызунов
Металлическая сетка по основанию и вент. зазору.
10 800 руб.
Покраска фасада
Заводская покраска фасада в 2 слоя краской Tikkurila.
126 000 руб.
Водосточная система
Водосточная система Docke, базовая серия.
20 000 руб.

Связаться с нами

Оформить заказ / Задать вопрос

Отправить проект на расчет

На этой странице Вы можете оставить заявку на расчет строительства дома или бани по Вашему проекту. Приложите Ваш чертеж к сообщению, либо укажите ссылку с другого сайта. Также напишите все Ваши пожелания для более точного расчета.

На расчет потребуется время, как правило 1-2 дня. Просим проявить терпение.
Менеджер свяжется с вами по готовности.

Если Вы загружаете свой проект, не забудьте нажать кнопку «Закачать», иначе мы не получим файл
Максимальный размер файла: 20 МБ.
Допустимые типы файлов: gif jpg jpeg png bmp eps tif pict psd rtf pdf doc docx xls xlsx ods.
Максимальный размер файла: 20 МБ.
Допустимые типы файлов: gif jpg jpeg png bmp eps tif pict psd pdf doc docx xls xlsx ods.
Максимальный размер файла: 20 МБ.
Допустимые типы файлов: gif jpg jpeg png bmp eps tif pict psd pdf doc docx xls xlsx.

Хочу себе такой же!

Записаться на экскурсию на строящийся объект

Наш сайт использует куки. Продолжая им пользоваться, вы соглашаетесь на обработку персональных данных в соответствии с политикой конфиденциальности.